Envio eletrônico de projetos conforme a legislação vigente, garantindo agilidade e conformidade legal.
Para garantir a correta análise e o deferimento dos projetos junto aos órgãos competentes, somente serão protocolados projetos com documentação completa, enviados exclusivamente por meio digital, conforme a legislação vigente.
Todos os documentos devem atender rigorosamente ao disposto no Art. 8º da Portaria SES nº 433, de 17/09/2024, que estabelece
“Para protocolar o Projeto Básico de Arquitetura (PBA) é necessário o envio ao NAPA, eletronicamente, dos documentos devidamente preenchidos e assinados digitalmente pelo autor do projeto e pelo representante legal do estabelecimento, em formato PDF, desbloqueados e pesquisáveis.”
Documento fornecido pelo Núcleo responsável
Arquivo individual em PDF
Assinaturas digitais do autor do projeto e do representante legal
Relatório TécnicoRegistro de Responsabilidade Técnica (CAU) ou
Anotação de Responsabilidade Técnica (CREA)
Arquivo individual em PDF
Elaborado conforme:
RDC nº 51/2011 – ANVISA
Portaria SES nº 433/2024
Arquivo individual em PDF
Assinaturas digitais conforme a Lei nº 14.063/2020
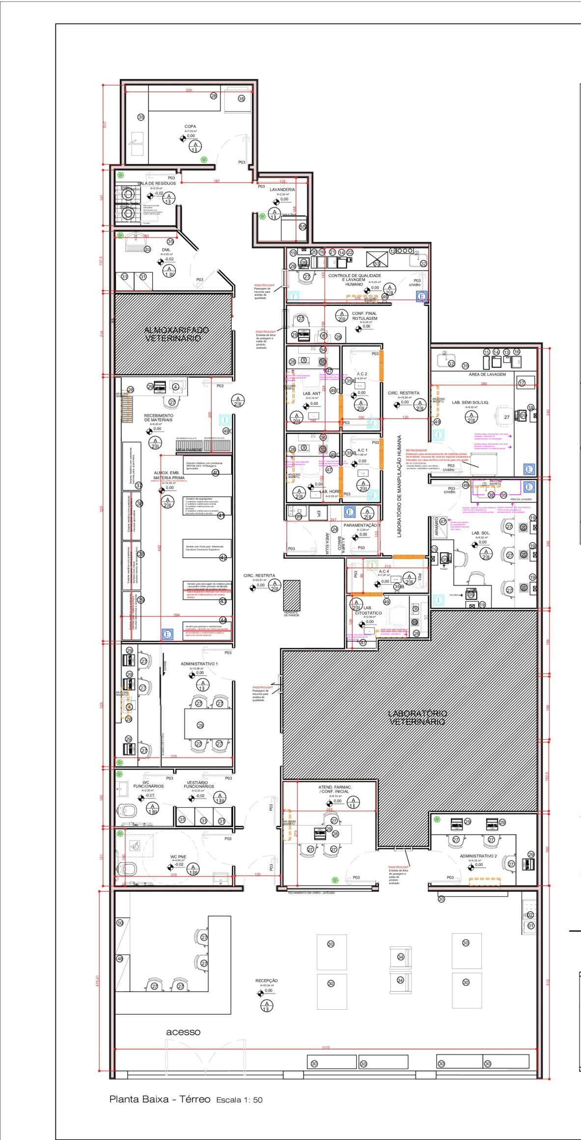
Planta baixa
Planta de layout
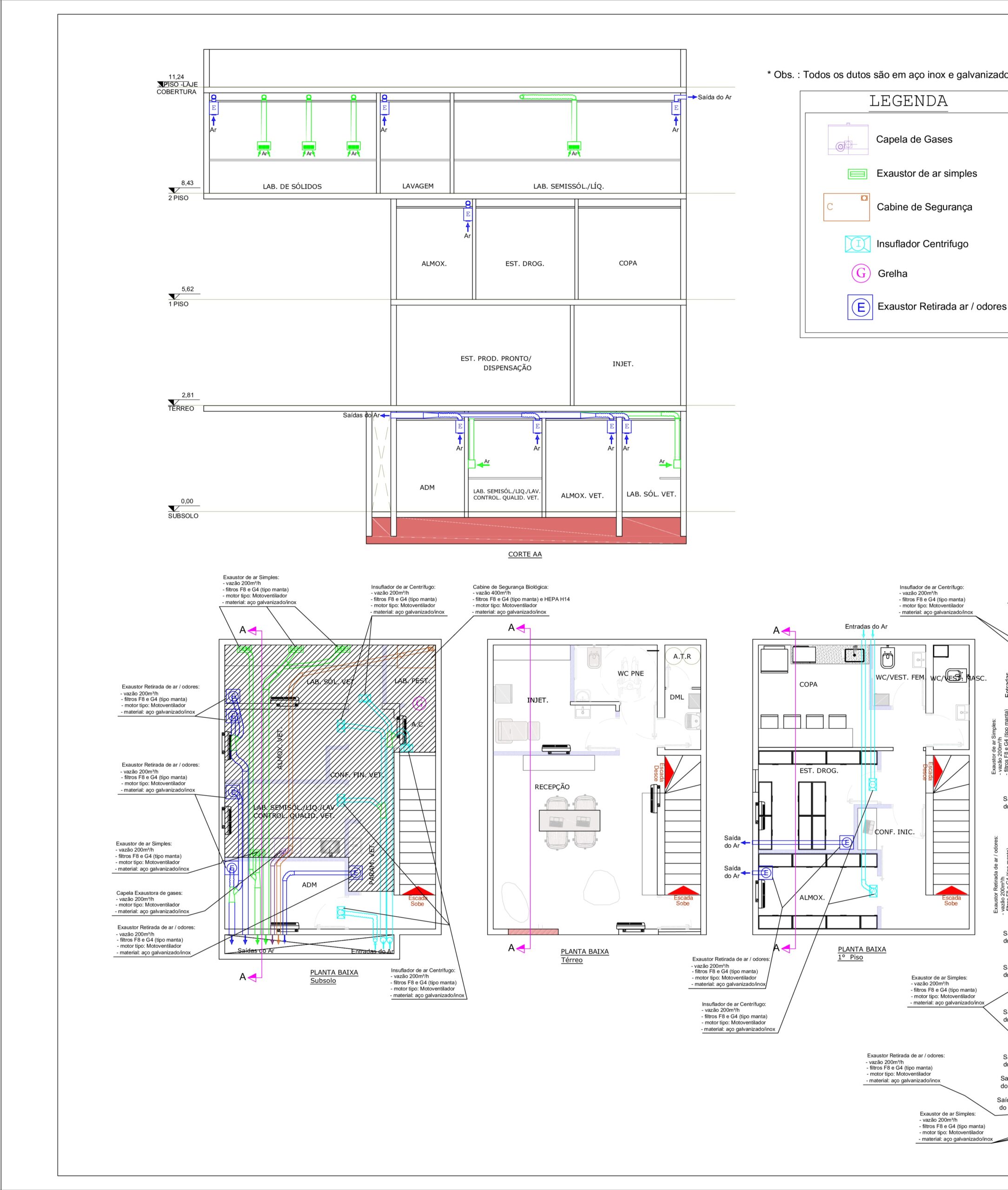
Planta de cortes
Planta de situação do terreno e entorno
Planta de locação no pavimento
Planta do sistema de renovação de ar




